SANT JOAN 27-29 – PALAU-SOLITÀ I PLEGAMANS

Próxima promoción de viviendas de obra nueva ubicada en Palau Solita i Plegamans. Zona residencial y tranquila muy bien comunicada, cercana a las principales vías de comunicación por carretera y próxima a parques, colegios y supermercados.

Edificio plurifamiliar compuesto por 34 viviendas, cuenta con diferentes tipologías de 2, 3 y 4 habitaciones con salidas a amplias terrazas exteriores y buena orientación. El edificio dispone de espacios comunes ajardinados y piscina. Los espacios han sido diseñados para el máximo aprovechamiento del espacio, la luz natural y el ahorro energético de las viviendas.

Si está interesado en recibir más información cuando se inicie la comercialización póngase en contacto con nosotros.

¿Te interesa?

Solicita más Información


Tipología de viviendas

Diseño sobre plano. Imágenes no contracturales, meramente ilustrativas sujetas a modificaciones de orden técnico, jurídico o comercial, instrucciones de la Dirección Facultativa o Autoridad Competente . Las imágenes de fachadas, elementos comunes y restantes espacios son orientativos y podrán ser objeto de verificación o modificación en los proyectos técnicos. El mobiliario mostrado en las imágenes de interior no está incluido y el equipamiento de las viviendas será el indicado en la correspondiente memoria de calidades.


VIVIENDA HAB. BAÑOS SUPERF. PLANO
4º 4ª - ESCALERA A 2 1 83,56m²
4º 3ª - ESCALERA A 3 2 93,82m²
4º 2ª - ESCALERA A 4 2 108,98m²
4º 1ª - ESCALERA A 3 2 98,12m²
3º 6ª - ESCALERA A 3 2 101,92m²
3º 5ª - ESCALERA A 3 2 97,24m²
3º 4ª - ESCALERA A 3 2 102,26m²
3º 3ª - ESCALERA A 3 2 95,65m²
3º 2ª - ESCALERA A 4 2 111,49m²
3º 1ª - ESCALERA A 3 2 98,91m²
2º 6ª - ESCALERA A 3 2 101,92m²
2º 5ª - ESCALERA A 3 2 97,24m²
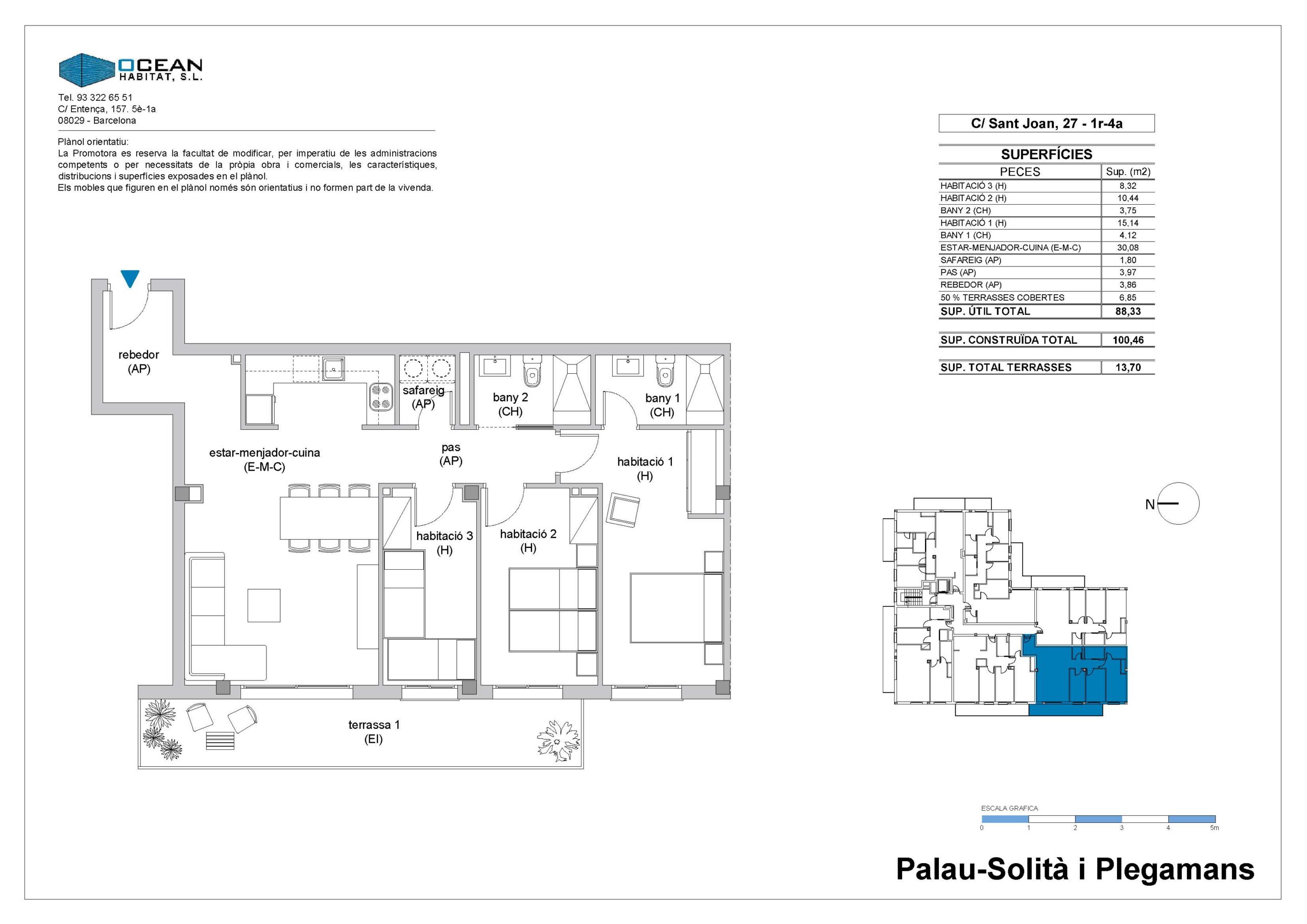
2º 4ª - ESCALERA A 3 2 100,46m²
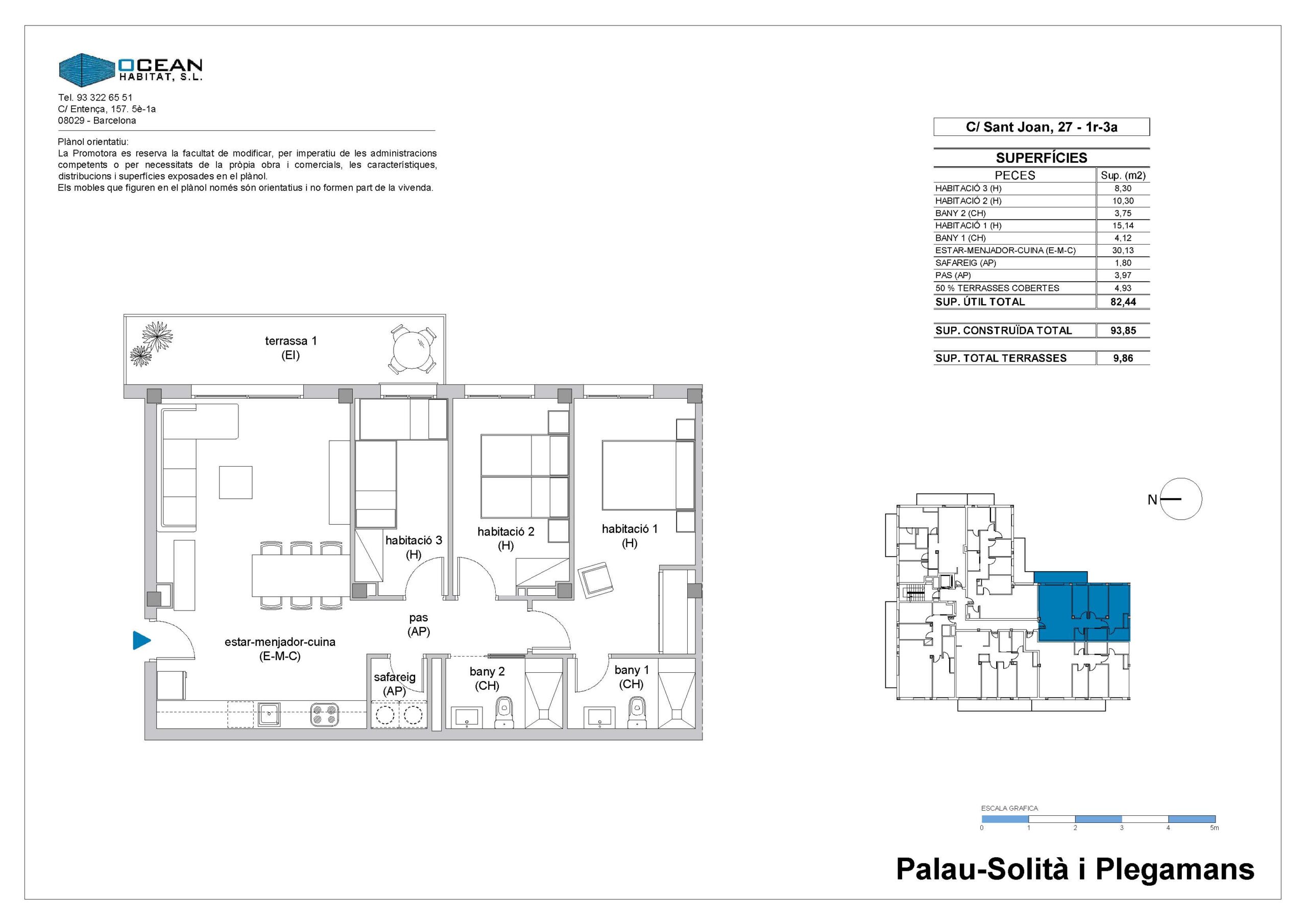
2º 3ª - ESCALERA A 3 2 93,85m²
2º 2ª - ESCALERA A 4 2 111,49m²
2º 1ª - ESCALERA A 3 2 98,91m²
1º 6ª - ESCALERA A 3 2 101,92m²
VIVIENDA HAB. BAÑOS SUPERF. PLANO
1º 5ª - ESCALERA A 3 2 97,24m²
1º 4ª - ESCALERA A 3 2 100,46m²
1º 3ª - ESCALERA A 3 2 93,85m²
1º 2ª - ESCALERA A 4 2 111,49m²
1º 1ª - ESCALERA A 3 2 98,91m²
3º 4ª - ESCALERA B 2 1 78,88m²
3º 3ª - ESCALERA B 3 2 96,18m²
3º 2ª - ESCALERA B 4 2 121,81m²
3º 1ª - ESCALERA B 2 1 77,21m²
2º 3ª - ESCALERA B 3 2 94,38m²
2º 2ª - ESCALERA B 4 2 120,01m²
2º 1ª - ESCALERA B 4 2 120,39m²
1º 4ª - ESCALERA B 2 1 77,21m²
1º 3ª - ESCALERA B 3 2 94,38m²
1º 2ª - ESCALERA B 4 2 120,01m²
1º 1ª - ESCALERA B 4 2 120,39m²

Ubicación